

Klikk på tegning for å åpne i fullskjerm.
Hold musepekeren over bilde for å zoome.
Hold musepekeren over bilde for å zoome.
« Tilbake
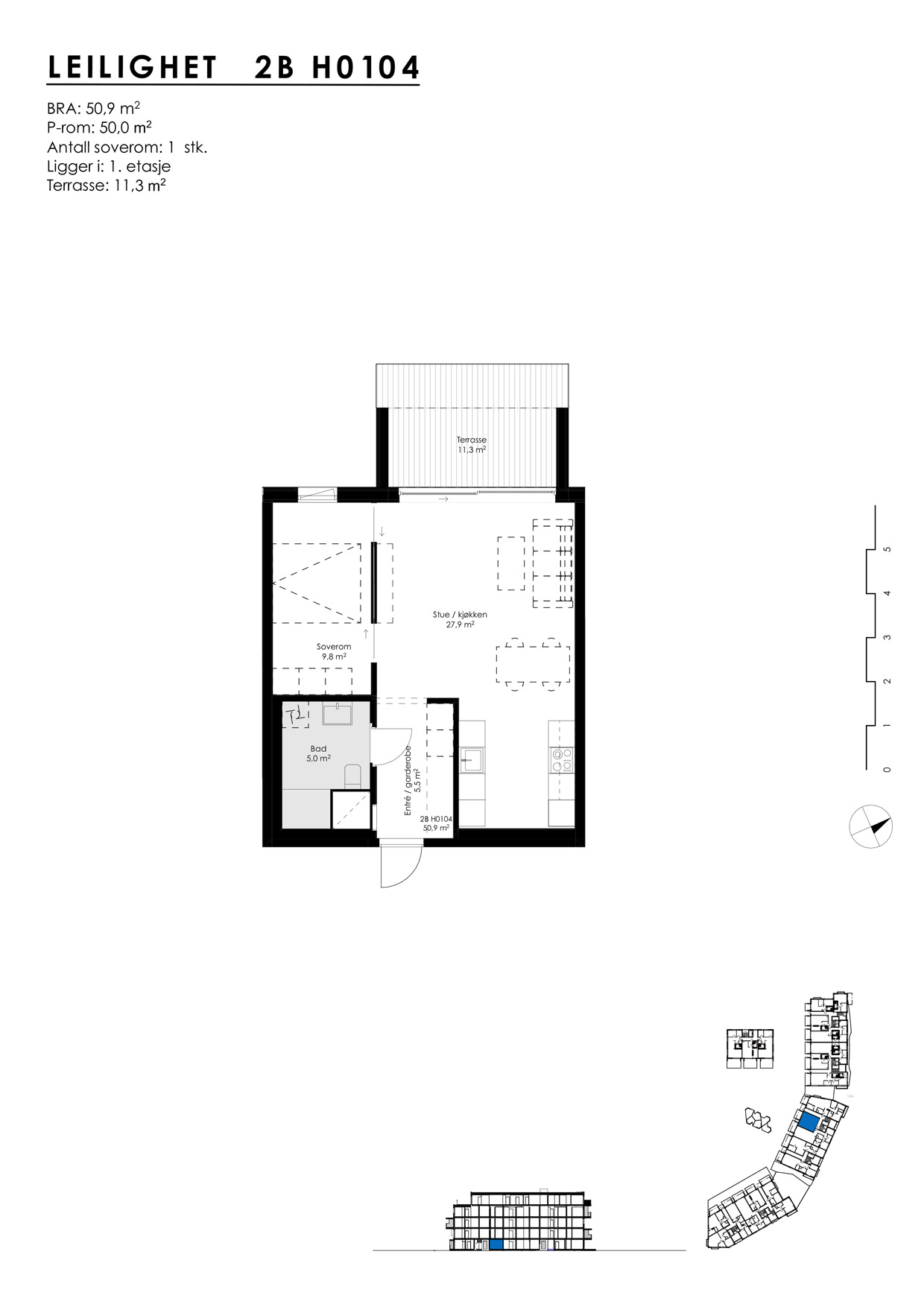
Leilighet 2B H0104
RESERVERT!
BRA:
Soverom:
1
Innskudd:
kr 807 000
Samlet kjøpesum:
Felleskostnader pr. mnd
inkl akonto vv & fyring
inkl akonto vv & fyring
kr 5 002
Smart og grei leilighet i 1. etasje som passer for en enslig eller for et par. Funksjonelle og gode løsninger med terrasse mot den skjønne parken.
SOLGT!
UTLEID!
Last ned prislisteLast ned prislisteLast ned prislisteLast ned prislisteLast ned plantegningKjøpetilbudsskjemaKjøpetilbudsskjemaKjøpetilbudsskjemaSe interaktiv visning av leilighetenKjøpetilbudsskjemaNo items found.
